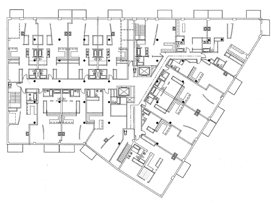
This website includes illustrations of a variety of building renovation and repurposing strategies, for consideration by private developers in response to the Commercial Real Estate Crisis.
Designs are large scale and include reconfiguation of large floor plans for new programs and vertical building additions, both spanning with steel frame and superimposed massonry.
Invested energy and invested capital are going to the chiefy metrics in this strategy, the chief measure being
Project Scope, the budget for the proposed work in relation to the cost savings by employing existing context which is kept.
Representing alignment of design, fabrication and site assembly these ideas for products and services reflect near term Best Practices based strategies to economically deliver enclosure at urban scale, in an era when tools for design and delivery of buildings are fundamentally changing and make such an approach possible.


















